1088
Modularna hiška Tiny House Modularna hiška Tiny House

Modularna stanovanjska hiška Tiny House

Najmanjša, a popolnoma bivalna modularna hiška

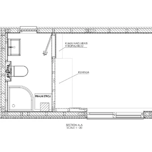
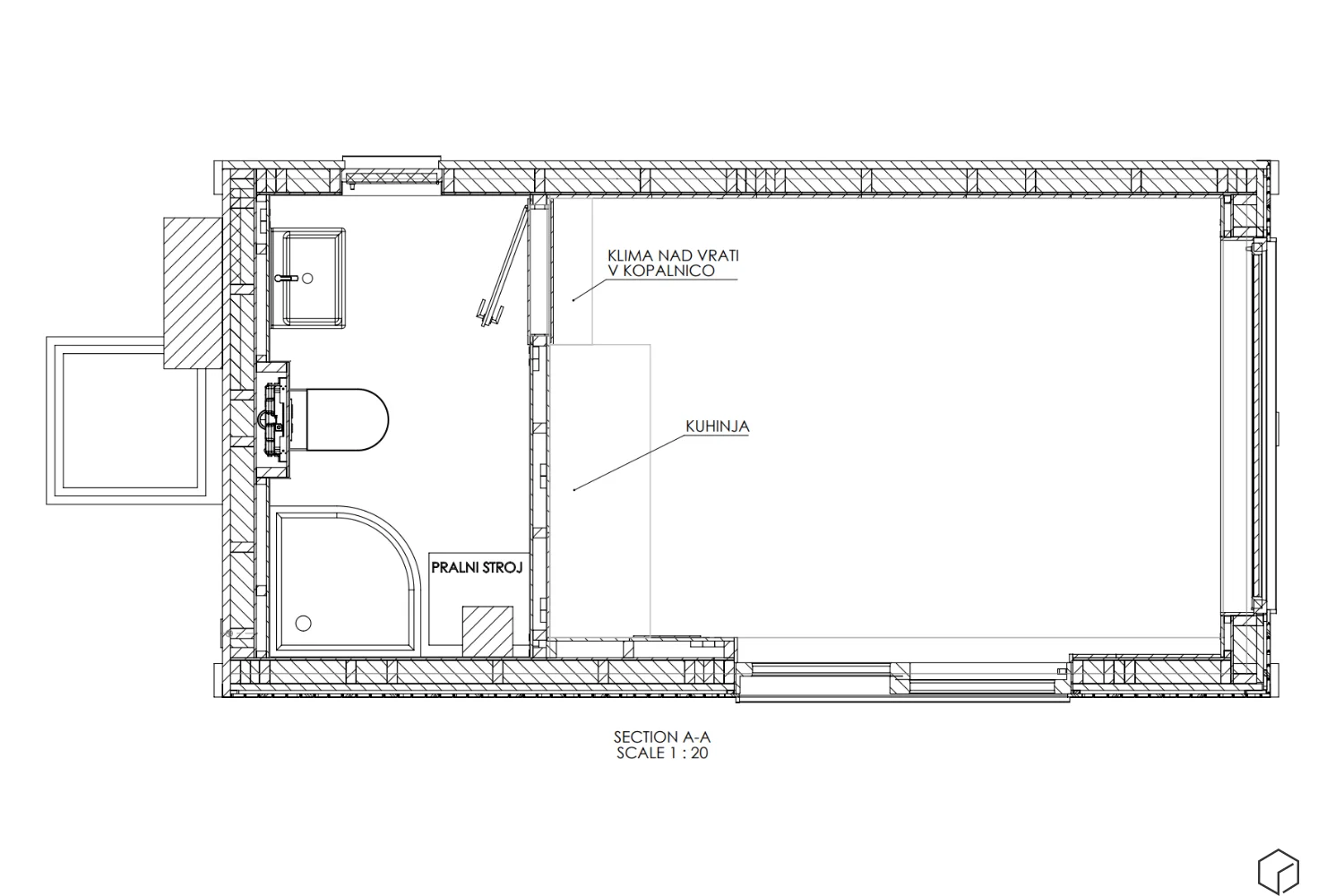
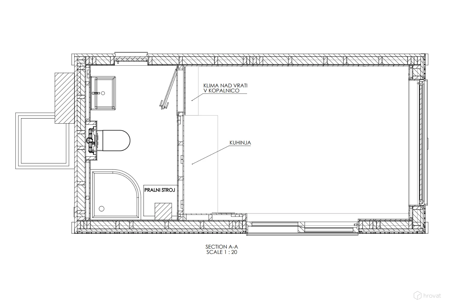
To je najmanjša modularna stanovanjska hiška, kar smo jih do sedaj izdelali  in v njej bo dom našla simpatična gospa, ki si je zaželela nekaj malega, a popolnoma svojega. Gospa se je odločila za našo hiško Cubie, saj ji klasične Tiny House hiške zaradi pomanjkljive izolacije ne bi omogočale bivanja skozi celo leto.

Naša modularna hiša pa ji ponuja prav to: toplino, udobje in trajno rešitev. Z več kot 30 cm debelimi zunanjimi stenami ter kakovostno kameno volno kot izolacijo, ta hiška kljub svoji velikosti nudi vse, kar potrebuje za udobno bivanje v vseh letnih časih. Dostavljena je bila kot končni modul "na ključ": zunanjost, notranjost, vse elektro in vodovodne inštalacije ter popolnoma opremljena kopalnica so že pripravljeni.

Postavljena je na zemljišču ob obstoječi stanovanjski hiši v strnjenem naselju. Gospa bo dodala le še svojo kuhinjo in izbrano pohištvo...  in novi dom bo pripravljen na vsakdan.

Hiška je bila na terenu postavljena v 4 urah.

Tokrat je postavitev hiške trajala dlje kot običajno, zaradi zahtevnosti terena (malo prostora za manevriranje in električni kabel čez katerega je bilo potrebno voditi hiško). Hiška je bila nato praktično pripravljena na vselitev.

Dimenzije modularne hiške:

625 x 320 x 300 cm

Dobrodošli v svetu sodobnih modularnih stanovanjskih hiš, kjer udobje sreča inovacijo.

Pri podjetju Hrovat za vas ustvarjamo vrhunske modularne hiše Cubie, ki omogočajo popoln umik in kakovostno bivanje v sožitju z naravo, v krogu vaših najbližjih. Ker so čas z bližnjimi, zdravje in notranji mir tisto, kar resnično šteje v življenju.

Naša premišljena zasnova združuje sodoben slog s funkcionalnostjo, kar vam omogoča sproščeno bivanje.

Hiško vam zaradi same modularne gradnje v nadzorovanem proizvodnem procesu naredimo v kratkem času in naš namen je, da vam gradnja, ko enkrat skupaj z vami zasnujemo vašo sanjsko hiško, ne trati vašega dragocenega časa in vam ne povzroča dodatnega stresa ter nepredvidljivih dodatnih stroškov. 

Visokokakovostni materiali zagotavljajo dolgo življenjsko dobo in energetsko učinkovitost, modularna struktura pa omogoča prilagajanje prostorov hiške vašim željam skozi različna časovna obdobja vašega življenja in mobilnost.

Uresničite svojo dolgoletno željo po bivanju v naravi z našimi modernimi modularnimi hišicami Cubie po meri.

Vas o modularni hiši zanima več? 

Pišite nam na [email protected] ali nas pokličite na telefonsko številko +386 (0)1 724 82 05

Želite več informacij o modularni gradnji? Prijavite se na poučne e-novice TUKAJ, kjer vas skozi niz video vsebin poučimo o tej gradnji prihodnosti.

 -

Potrebujete le IZOLIRANO vrtno sobo za druženje? Kliknite tukaj.

Zakaj CUBIE?
  • Vsaka hiška Cubie je izdelana po meri.
  • Kakovost in izolativnost primerljiva z montažno gradnjo.
  • Poenostavljena papirologija za pridobitev gradbenega dovoljenja.
  • Hiter dobavni rok.
  • Hiško dostavimo sestavljeno - montaža traja par ur, nato je hiška vseljiva.

Oglejte si kratek predstavitveni video

STANDARDNA OPREMA IN LASTNOSTI MODULARNE HIŠKE CUBIE:

OSNOVNE INFORMACIJE

  • Modularna izvedba: hiško dostavimo v celoti izdelano, zato je postavitev na terenu hitra in enostavna. Običajno postavitev na terenu traja 1-2 dni.
  • Izdelujemo večino velikosti do 100 m2, lahko tudi več. Hiše so izdelane iz enega ali več modulov.
  • Primerna za bivanje skozi celo leto.
  • Masivna lesena konstrukcija primerna za visoke obremenitve snega in vetra.
  • Izolacija: kamena volna ali lesna vlakna.

IZBIRA IZOLACIJE

MOŽNOSTI ZUNANJE FASADE:

MOŽNOSTI NOTRANJE STENSKE IN STROPNE OBLOGE

Vzorce materialov je možno videti v našem razstavnem salonu v Domžalah.

OSTREŠJE

  • Kritina: Sika kritina, ki predstavlja vrhunsko in trajno rešitev za ravne strehe.
  • Streha ima predvidoma 1% padca, dizajn hiše ponuja videz ravne strehe.
  • Pločevinaste obrobe je možno izbirati; BARVNA KARTA
  • Debelina izolacije v strehi:

KONSTRUKCIJA TAL IN POD

  • Kovinska podkonstrukcija z nivelirnimi tačkami. To nam omogoča, da je modul dvignjen, s čimer poskrbimo za zračenje in nizko vlažnost pri tleh, kar podaljša življenjsko dobo modula.
  • Debelina izolacije v podu:
    • kamena volna ali lesna vlakna debeline 140 - 180 mm 
  • Izbira poda: PVC pod ali parket. Vzorce je možno videti v našem razstavnem salonu.

OKNA IN VRATA

  • Okna: visoko kakovostna masivna smrekova lesena okna slovenskega proizvajalca barvana v željen odtenek. Termopan troslojna zasteklitev (opcijsko tudi dvojna zasteklitev).
  • Notranja vrata: tipska izvedba iz mediapan materiala v krilni ali drsni izvedbi.
  • Vhodna vrata kot možnost dodatne opreme: visoko kakovostna vhodna vrata proizvajalca Pirnar.

ELEKTROINŠTALACIJE

  • Elektroinštalacije v celoti izvede naše podjetje, zato je izbira komponent enostavna, izvedba pa kakovostna.
  • Količino in pozicijo vtičnic in stikal je možno poljubno izbirati.
  • Inštalacije so združene v centralni elektro omarici, priklop elektrike na objekt je iz talne plošče na vnaprej določeni lokaciji.
  • Kot dodatna oprema so za osvetlitev na voljo LED trakovi vgrajeni v strop ali LED plafonjere.

STROJNE INŠTALACIJE

  • Vodovod: kompletna izvedba za kopalnico in kuhinjo. Priklop iz talne plošče na vnaprej določeni lokaciji.
  • Odpadna sanitarna voda in kanalizacija: kompletna izvedba. Priklop iz talne plošče na vnaprej določeni lokaciji.

Fasade

Izbirate lahko med več možnostmi fasade, za vas prilagodimo tudi barvo.

Šifra produkta:
CB Tiny House
  • uspešnih poslovnih let družinskega podjetja

  • +

    izdelanih Cubie hišk

  • št.

    v modularni gradnji iz naravnih materialov

  • srčnih in strokovnih sodelavcev

  • Bureau Veritas CBS

CO2 nevtralni obrtnik